当百年国匠遇见京西 首钢·金璟阳光守护美好生活
今年下半年,北京多个区域共有产权房项目启动申购,市场迎来共有产权房“小高潮”,其中,首钢·金璟阳光作为目前唯一位于城六区的共有产权房,在市场中吸引了大量关注。
10月30日,在项目示范区正式开放之前,来自京城30余家主流媒体嘉宾集结首钢二通产业园东区首钢·金璟阳光接待中心,共鉴首钢·金璟阳光的“国匠筑居
光耀京西”。
“首钢·金璟阳光项目是首钢地产首个独立打造的共有产权房项目,虽然是共有产权房,但在产品质量、所处地段、周边配套、环境资源等方面依旧做到了与周边商品房项目比肩。”北京首钢房地产开发有限公司北京公司副总经理杜林巍在致辞中表示,“在未来的日子里,我们将继续传承‘敢闯、敢坚持、敢于苦干硬干’,发扬‘敢担当、敢创新、敢为天下先’的首钢精神,为人们带来更多的优质居住产品,努力把首钢地产事业推向更加美好的明天!”
(北京首钢房地产开发有限公司北京公司副总经理杜林巍致辞)
多元户型舒适设计 高性价比承载美好生活
活动现场,各位专业媒体嘉宾品鉴者围绕项目进行了分享。
“初见即感受到了项目的品质,可以说是远远超出了预期。”品鉴者表示,目前,北京推出共有产权房已有3年,期间已有多个共有产权房项目接受了申购者们的审视,从首钢·金璟阳光的独立售楼处设置以及样板间展示、信息展示,就已感受到项目的品质追求以及对于置业者的诚意。“对于居住者而言,居住产品的设计与品质是极为重要考量因素。”
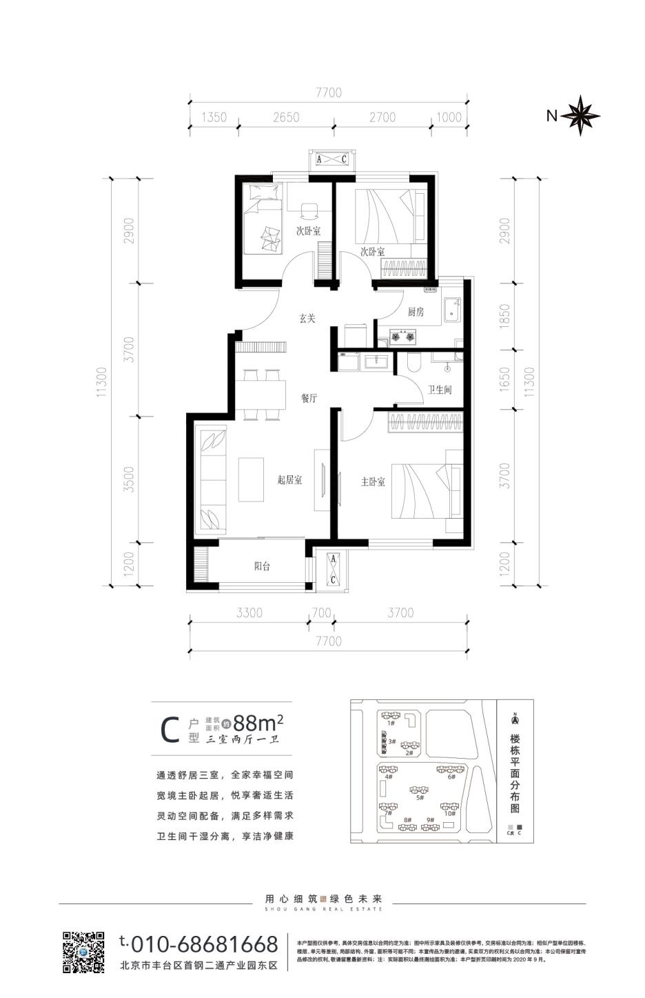
首钢·金璟阳光产品涵盖从建筑面积62平方米的一居到建筑面积89平方米的三居,覆盖各类型刚需客群需求,且大部分为纯南或南北通透户型,采光充足,空间利用率高,与各类家庭的生活需求都有着很高的适配性。其中,“各户型都设计有舒适阳台”这一点极具舒适性与实用性,充分洞察申购者的生活需求。且项目已高品质精装修交付,并打造了覆盖全生命周期的各类生活场景,切实从刚需购房人群的处境出发,带来精力与时间上的贴心照顾。
“项目的体量也是其极具优势的部分。”品鉴者指出,首钢·金璟阳光总占地面积达到约6.2万平方米,总建筑面积约28万平方米,在共有产权房项目中可算是大盘。纵观全国各区域的发展,不难发现高品质的大体量项目与项目周边发展增速、生活配套改善之间有着明显的正相关。同时,人员的集中与流动还将带动区域各类生活、经济资源的富集,推动区域快速发展。
而在这样面对这样的大体量项目运营,首钢·金璟阳光不仅做到绿化率30%,社区还采用人车分流设计并拥有约2000个车位,达到一辆/户的车户比,可谓“内外兼修”。
值得注意的是,自2018年底的槐新雅筑和正商名苑之后,丰台区便进入了共有产权房的“断档期”,与此同时,今年北京土地市场目前共出让住宅用地近40宗,其中共有产权房及限竞地块共6宗,其余均为不限价地块,平均溢价率高达约20%,部分区域的楼面价甚至刷新了记录,“在这样的趋势下,首钢·金璟阳光这样的高性价比刚需项目,可以说是有着极高的稀缺性。”
立体交通多层配套 优势区位铸就丰盛生活
“品质之外,首钢·金璟阳光也有着极强的区位优势。”
一位品鉴者指出,首钢·金璟阳光地处西四环和西五环之间,拥有“三横、三纵、三轨”的立体交通网络,北侧的莲石东路连通长安街,南侧京港澳高速通达多条交通要道;周边除地铁1号线、14号线外,还有已于去年11月开工的地铁11号线,距离项目约150米,未来将形成与6号线、10号线等多条地铁便利换乘的轨道网;多条公交线路保证了项目与万达商圈、五棵松商圈、丽泽商务圈、金融街商圈等多个大型商圈的便利通达。
除了上述处在项目辐射范围内的大型商圈,项目周边有FAN MA京荟广场、永辉广场、翠微百货、台湾街等多家商场。更有北京欢乐水魔方水上乐园、石景山游乐场、园博园、北京国际雕塑公园等分布项目周边,充分提升区域内生活丰盛度。
值得一提的是,项目西北侧约400米还有已处于在建状态的小瓦窑产业园,该项目为占地2.8万平方米,总建筑面积18万平方米的大型城市综合体,其商业街区部分4万余平方米,涵盖餐饮、商超、零售、电影院、城市会客厅等多重业态,能充分满足多元的生活需求并带来更为舒适、便捷、周全的未来生活体验。
此外,首钢·金璟阳光所处区域目前已受到三轮城南计划利好辐射,区域内基础设施、民生改善、高精尖产业等领域已获得大幅的提升,并有着强大的社会关注度、资源投入度与发展潜力。周边中关村科技园丰台区、丽泽金融商务区、丰台总部基地也在为区域提供着源源不断的产业发展力量与经济增长动能。
践行社会责任 实至名归百年匠心
“提到首钢地产,必然会想到‘匠心’二字。”
中国首钢集团始建于1919年,距今已有100年的历史,拥有着丰富而厚重的城市更新、区域开发、社群运营经验与资源。首钢地产依托首钢集团资源优势,实施“双轮驱动”发展战略,已形成北京、环渤海等四大战略区域,开发产品涵盖住宅、公寓、别墅、商业、写字楼、旅游度假及酒店等多种业态,累计获得房地产业界奖项近百个,并与多家知名房企形成合作伙伴关系。
其中,首钢地产在北京地区合作开发商品房项目总建筑规模超200万平方米,为市场带来金顶阳光、金通阳光苑等多个极具市场影响力的高品质匠心作品,推动品质人居发展,助力人民的美好生活。
同时,首钢地产积极承担社会责任,在北京地区独立开发了北京市首批“两限房”项目,为广大刚需人群提供具有品质的坚实支撑。此次首钢·金璟阳光的入市,更是首钢地产品质匠心的又一次体现。凭借极具吸引力的高性价比、得天独厚的区位优势,便捷的交通路网,多层级的丰富周边配套,以匠心为京西四环筑造幸福生活的承载处。
“对于追求生活品质与高性价比的刚需族而言,首钢·金璟阳光是不可多得的好选择。”
首钢·金璟阳光示范区在本月31日正式开放,示范区内设有项目沙盘及讲解,项目样板间亦同步开放。
本网站上的内容(包括但不限于文字、图片及音视频),除转载外,均为时代在线版权所有,未经书面协议授权,禁止转载、链接、转贴或以其他 方式使用。违反上述声明者,本网将追究其相关法律责任。如其他媒体、网站或个人转载使用,请联系本网站丁先生:news@time-weekly.com